


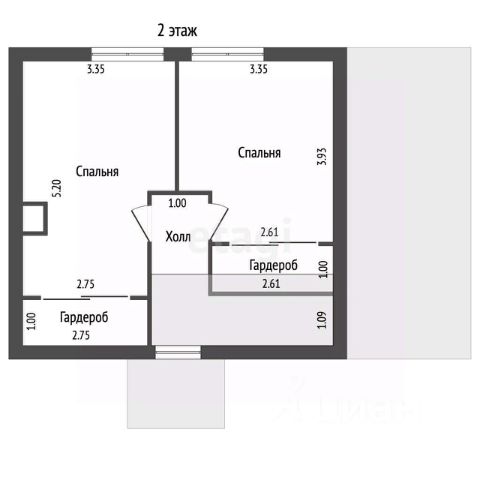
Продаётся дом 9x13 в Московской области, г.о. Домодедовский, коттеджный посёлок "Рублёво" под семейную ипотеку 6% (ВТБ, Сбербанк, Альфабанк). Свой кредитный менеджер, одобрение за 1 день с вероятностью 99%. Участок: 6,85 сот. (при желании можно увеличить площадь до 14,18 сот. за 2,5 млн. руб.) Планировка: • Просторная гостиная-кухня с "вторым светом" (потолок подшит по стропилам). • 3 спальные комнаты. • Санузел и котельная. • Тамбур для удобства. • Высота потолков: 2,7 м. Технологии строительства: • Каркасная технология из сухой строганной доски (стойки стен 45x140 мм). Исключена деформация, появление щелей, конструкция дома более устойчива. • Утепление: стены 200 мм, пол 250 мм, потолок 200 мм. Комфортное круглогодичное проживание, ниже теплопотери, значительно ниже уровень шума с улицы. • Фундамент: ж/б сваи (150x150x3000 мм). В отличие от винтовых, не подвержены коррозии даже спустя 30-40 лет. • Кровля: металлочерепица (толщина 0,5 мм). Высокий стандарт качества от Grand Line. • Фасад: фиброцементный сайдинг под дерево (Бетэко - Вудстоун). Премиальный тип обшивки, в 2,5 раза дороже стандартного сайдинга, прослужит 50-100 лет без доп. ухода. • Приоконные элементы и углы дома выполнены из металла. В отличие от пластика, не выгорают, не деформируются и не теряют форму. • Карнизный свес 600 мм. Отделка и материалы: • Внутренние стены: ОСБ 9 мм + ГКЛВ 9,5 мм (в санузле ЦСП). Идеальная основа под обои, не прогибается, обеспечивает жесткость стен, исключая риск растрескивания штукатурки, обои не отклеиваются • Потолок натяжной, пол фанера 21 мм с финишным покрытием: кварц-винил SPC с подложкой Floorwood Genesis. Кварц-винил более теплый и менее шумный по сравнению с ламинатом. Не рассыхается, не расходится, не набухает от влаги. • Терраса: настил из ДПК с опорными столбами из клееного бруса (140x140 мм). Не подвержен гниению, не боится влаги и сохраняет внешний вид. Опорные столбы не трескаются и не деформируются. • Цоколь: зашит фасадными панелями Дёке под камень, установлены продухи, продувается. • Дополнительно: металлический отлив над цоколем по всему периметру дома. Инженерные решения: • Вентиляция: две точки с выходом в утеплённые "Грибы" (гофр на чердаке). • Установлена утеплённая чердачная лестница в холле. • Двери: входная металлическая (Термо), межкомнатные МДФ. • Окна: с ламинацией. • Кровля: оборудована снегозадержателями, водосточной системой. Коммуникации: • Эл-во: 15 кВт • Скважина: 50 м • Септик: на 6-8 чел О коттеджном посёлке "Рублёво": • Расположен по Каширскому шоссе, 40 км от МКАД. • Удобная транспортная доступность: на авто или электричке. • Территория: охраняемая, въезд через ворота. • Дорога: асфальтовая крошка. • В 200 м водоем, в 1,5 км лес • На территории есть парковка, парк. • В радиусе 5 км магазины, аптека, школа, детский сад, кафе, АЗС, стройматериалы, церковь. Поможем получить выгодную ипотеку! Звоните сейчас! Возможен просмотр в удобное время! Купить загородную недвижимость в городском округе Домодедово Домодедовского района.




































































































































































