Мы используем куки-файлы. Соглашение об использовании

Просмотр в удобную дату

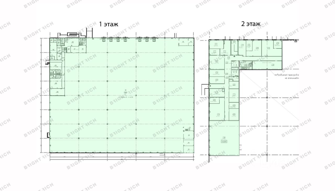
Площадь12 792 м²
Этаж1 из 1
Выс. потолков12.0 м.
ПомещениеСвободно
Отчёт о привлекательности объектаУзнайте, насколько помещение и район подходят для вашего бизнеса
Что входит в отчёт
  • Охват населения
  • Пешеходный трафик
  • Автомобильный трафик
  • Средний бюджет семьи по району
  • Арендные ставки рядом
  • Точки притяжения
  • Конкуренты в радиусе 1 км
  • Рекомендации по выбору места для бизнеса
ЮЖНЫЕ ВРАТА Аренда сухого склада класса А; прямая аренда без комиссии. Южное направление, выезд на трассу М4 Дон и Каширское шоссе. Все блоки свободны и готовы ко въезду. ТЕХ.ПАРАМЕТРЫ: • класс: А; • шаг колонн: 12х24 м; • уровень пола: 1,2 м; • нагрузка на пол: 7 тонн; • высота потолков: 12 м; • вентиляция: приточно-вытяжная; • система пожаротушения: спринклерная; • пожарная сигнализация: есть; • наличие газа: есть; • ограничения по электроэнергии: 32 МВт; • офисные помещения и мезонины: есть; • тип пола: с антипылевым покрытием. ФИН.УСЛОВИЯ: • в арендную ставку включен НДС и ОРЕХ; • арендная ставка 13 664 ₽/м²/год; • прямая аренда без комиссии для клиента. Готовы оперативно организовать просмотр в удобное время и предоставить PDF-презентацию, план, а также видеотур по запросу.
lock

Войдите или зарегистрируйтесь
для просмотра информации

Просматривайте условия сделки и всю информацию об объекте
Сохраняйте фильтры в поиске и не вводите заново
Доступ к избранному с любого устройства
Неограниченное добавление в избранное
Позвоните автору
Вам ответят на все вопросы
Остались вопросы по объявлению?
Позвоните владельцу объявления и уточните необходимую информацию.
  • Инфраструктура
  • Похожие рядом
  • Тип зданияИндустриальный парк
  • Общая площадь12 792 м²
Приточная вентиляция
Спринклерная система пожаротушения
Помощь надёжных риелторов
Риелтор партнёр Циан поможет купить или продать любую недвижимость
14 565 828 ₽/мес.

Прямая аренда (от года), предоплата за 1 месяц

191 521 $/мес.
162 519 /мес.
Цена за метр
13 665 ₽ в год
Налог
НДС включен: 2 626 624 ₽
Комиссия
нет
Коммунальные платежи
не включены
Эксплуатационные расходы
включены
Агентство недвижимости
На Циан
12 лет
Объектов в работе
более 1000