Мы используем куки-файлы. Соглашение об использовании
Площадь810 м²
Этаж1 из 2
Сетка колонн12Х18
Выс. потолков9.5 м.
ПомещениеСвободно
Отчёт о привлекательности объектаУзнайте, насколько помещение и район подходят для вашего бизнеса
Что входит в отчёт
  • Охват населения
  • Пешеходный трафик
  • Автомобильный трафик
  • Средний бюджет семьи по району
  • Арендные ставки рядом
  • Точки притяжения
  • Конкуренты в радиусе 1 км
  • Рекомендации по выбору места для бизнеса
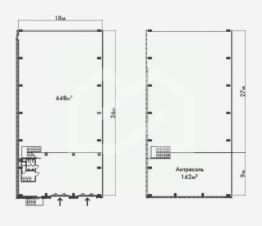
1134605. Предлагается склад общей площадью 810 кв. м в Домодедово. 1 этаж + антресоль ОСЗ. Преимущества: Парк расположен в черте города. Возможность эффективно выстроить логистику и поиск трудовых ресурсов для ведения бизнеса. Два независимых КПП. Прямой выход на Каширское шоссе и на трассу М4, что дает возможность резидентам построить маршрут как в сторону города, так и области. ЦКАД в 10 минутах езды. 10 минут от ж/д станции Домодедово. Выделенный земельный участок под зданием и прилегающей территории. Возможность установки кран-балки. Температурные режимы: сухой, холодильный, морозильный. Ворота оборудованы доклевелерами, докшелтерами фирмы Allutech (Алютек). Пожарная сигнализация и спринклерная системапожаротушения. Режим работы и доступа для собственников и арендаторов 24/7. Охрана и видеонаблюдение на территории. Точки общественного питания. Система контроля удаленного доступа для автотранспорта. Уборка территорий, ремонт общих коммуникаций и дорог Организованная парковка для легкового и грузового транспорта. Технические характеристики: Площадь блока: 810 кв. м. Складская площадь: 648 кв. м. Антресоль: 162 кв. м. Нагрузка на пол: 1 этаж - 6 т/ кв. м, антресоль - 1 т/ кв. м. Высота потолка: 9.5 м. Высота пола: 1 м. Электрическая мощность: 24 кВт.
lock

Войдите или зарегистрируйтесь
для просмотра информации

Просматривайте условия сделки и всю информацию об объекте
Сохраняйте фильтры в поиске и не вводите заново
Доступ к избранному с любого устройства
Неограниченное добавление в избранное
Позвоните автору
Вам ответят на все вопросы
Остались вопросы по объявлению?
Позвоните владельцу объявления и уточните необходимую информацию.
  • Инфраструктура
  • Похожие рядом
  • Тип зданияИндустриальный парк
  • Общая площадь810 м²
Помощь надёжных риелторов
Риелтор партнёр Циан поможет купить или продать любую недвижимость
89 100 000 ₽
1 184 296 $
1 004 167
Цена за метр
110 000 ₽
Налог
НДС включен: 16 067 213 ₽
Агентство недвижимости
Документы проверены