Мы используем куки-файлы. Соглашение об использовании
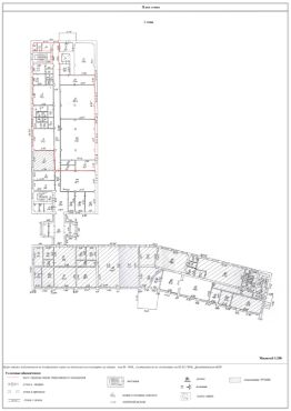
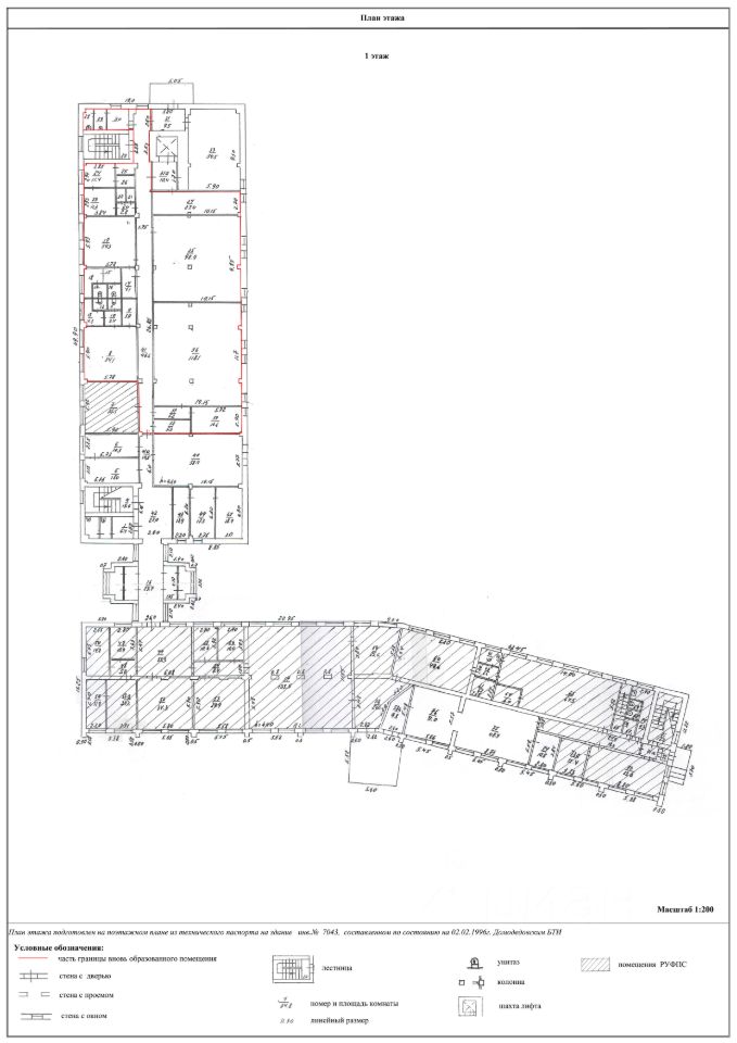
Помещение свободного назначения, 480 м²
Площадь480 м²
Этаж1 из 1
ПомещениеСвободно
Отчёт о привлекательности объектаУзнайте, насколько помещение и район подходят для вашего бизнеса
Что входит в отчёт
  • Охват населения
  • Пешеходный трафик
  • Автомобильный трафик
  • Средний бюджет семьи по району
  • Арендные ставки рядом
  • Точки притяжения
  • Конкуренты в радиусе 1 км
  • Рекомендации по выбору места для бизнеса
Готовый бизнес для Вас! Коммерческое помещение в центре города Домодедово! ПАО "Ростелеком" предлагает к продаже нежилое помещение общей площадью 480,1 кв.м, расположенное по адресу: Московская область, г. Домодедово, Каширское шоссе, д. 62. Основные характеристики объекта: Кадастровый номер: 50:28:0010567:5929 1 этаж Помещение с действующим арендатором - торговая сеть "Пятёрочка" (X5 Group). Арендный поток составляет 1 452 441,55 руб. в месяц с учетом НДС. Арендуемая площадь - 480,1 кв. м Расположение: здание находится на оживленной трассе Каширского шоссе, что обеспечивает высокий трафик и потенциал для бизнеса. Коммуникации: электроснабжение, отопление, водоснабжение, канализация. Преимущества объекта: Выгодное расположение в развивающемся районе г. Домодедово. Каширское шоссе — ключевая транспортная артерия Домодедово, обеспечивающая высокий трафик как автомобилистов, так и пешеходов. Удобная транспортная доступность и близость к инфраструктуре. Готовый бизнес "под ключ": Вы покупаете не просто квадратные метры, а готовый актив с нулевым простоем. Арендный поток начинается с первого дня владения. Присутствие федерального ритейлера "Пятёрочка" гарантирует стабильный ежемесячный доход и перекрывает основные расходы на содержание. Продажа от собственника — юридического лица ПАО Ростелеком . Мы гарантируем грамотное оформление сделок и юридическую чистоту объектов. Рассматриваем предложения от брокеров и риелторов и готовы к заключению договора на оказание услуг. У нас также есть много других объектов по Московской области. Звоните, будем рады ответить на все ваши вопросы! Не упустите шанс приобрести выгодный объект недвижимости в перспективном месте!
lock

Войдите или зарегистрируйтесь
для просмотра информации

Просматривайте условия сделки и всю информацию об объекте
Сохраняйте фильтры в поиске и не вводите заново
Доступ к избранному с любого устройства
Неограниченное добавление в избранное
Позвоните автору
Вам ответят на все вопросы
Остались вопросы по объявлению?
Позвоните владельцу объявления и уточните необходимую информацию.
  • Инфраструктура
  • Похожие рядом
  • Общая площадь480 м²
Помощь надёжных риелторов
Риелтор партнёр Циан поможет купить или продать любую недвижимость
131 760 000 ₽
1 760 676 $
1 505 380
Цена за метр
274 500 ₽
Налог
НДС включен: 23 760 000 ₽
Агентство недвижимости
Документы проверены