Мы используем куки-файлы. Соглашение об использовании
Только на Циан
Общая площадь290 м²
Участок16,9 сот.
Материал домаМонолитный
Этажей в доме3
Год постройки2015
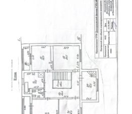
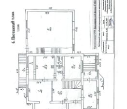
Продается дом 290 кв.метров плюс жилая мансарда 90кв.м., в центре г.Домодедово. В доме 7 комнат, кухни, подсобные помещения, туалеты, ванные комнаты. На первом этаже полы с подогревом. Центральная канализация, вода, газ в доме. Перекрытия монолит. Фундамент монолитная плита. 4 контура отопления на каждую стену.Гараж . На участке 1690 м.кв. расположено нежилое помещение 179 кв.м. с ямой для ремонта машин. В помещение комната для отдыха, ванна, туалет. Можно использовать как гостевой дом. Также есть нежилое помещение 47 кв.м.., 42 кв.м.Земля ИЖС. Рядом с домом школа, аптеки, торговые центры, поликлиника. В 5 минутах остановка общественного транспорта до метро Домодедовская. В 15 минутах ходьбы станция жд до Павелецкого вокзала. Один взрослый собственник.Никто не прописан. Быстрый выход на сделку.
Позвоните автору
Вам ответят на все вопросы

О доме

Площадь

290 м²

Материал дома

Монолитный

Состояние дома

Можно жить

Количество этажей

3

Количество спален

7

Год постройки

2015

Об участке

Площадь

16,9 сот.

Категория земель

Земли населённых пунктов

Статус участка

Индивидуальное жилищное строительство

Коммуникации и удобства

Санузел

3 в доме

Канализация

Центральная

Водоснабжение

Центральное

Отопление

Центральное газовое

Электричество

Есть

Газ

Магистральный в доме или на участке

Дополнительно

Гараж

Спросите умного помощника
Получите экспертное мнение о жилье

Расположение

Подпишитесь на объявления в этой локации
Мы сообщим, как только поблизости появится что‑нибудь новенькое
Ипотечный калькулятор
  • Базовая
  • Семейная
  • ИТ-ипотека
  • 20%
  • 30%
  • 40%
  • 50%
лет
  • 10 лет
  • 20 лет
  • 30 лет
Загружаем предложения от застройщика и банков
Хотите продать недвижимость?Разместите объявление на ЦианРазместить
36 000 000 ₽
Эксперт от ЦианаПомощь с поиском и гарантия безопасной сделки
Цена за метр
124 138 ₽/м²
Ипотека
возможна
Агентство недвижимости
Суперагент