218 300 ₽/м²
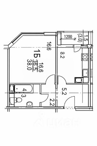
Продается однокомнатная квартира в жилом комплексе комфорт класса "Домодедово парк" площадью 41.03 кв.м на 11 этаже 17 этажного дома. Квартира с предчистовой отделкой (whitebox) КВАРТИРЫ: • Улучшенные планировочные решения гарантируют обилие света •Свободная планировка для реализации ваших дизайн-проектов •Высота потолков в чистоте 2,72 м •Двухкамерные стеклопакеты для сбережения тепла в холодное время года ТРАНСПОРТНАЯ ДОСТУПНОСТЬ: •3 шоссе (М4 Дон бесплатный участок, Каширское, Симферопольское) для вас и вашего авто •39 минут до центра Москвы на электропоезде •Ж/Д станция в пешей доступности •5 остановок электропоезда в Москве вы больше не привязаны к вокзалу, выбирайте удобную ветку метро •Скоростная линия МЦД сможете добираться еще быстрее •Остановка маршрутного такси на территории жилого комплекса ХОЛЛЫ: •Помещения для колясок и велосипедов на первых этажах сберегут место на вашей лоджии •Витражное остекление от пола до потолка, потому что дом начинается с холла в нем тоже должно быть красиво и уютно •Высота потолков 3,3 м здесь вас не покидает ощущение простора и воздуха •Пол отделан плиткой Kerama Marazzi, известной своим высоким качеством ДОМА: •Основной материал монолитный железобетон, имеющий преимущества над другими материалами •Выразительные фасады, облицованные керамогранитными плитами жизнерадостного цвета, делают архитектуру привлекательной •Подвесные корзины для кондиционеров для оперативного монтажа и упрощенного обслуживания климатической техники •Собственные коммуникации как часть автономного комфорта ИНФРАСТРУКТУРА: •Детский сад и школа уже работают ваши дети будут учиться рядом с домом •В 2024 году будут сданы еще 2 детских сада чтобы вы тратили всего 5 минут на то, чтобы отвести ребенка в сад •Вторая школа уже на этапе проектирования, потому что мы понимаем, что одной школы мало •Действующий терапевтический и стоматологический кабинеты для поддержания здоровья •Продуктовые магазины, аптеки, кофейни уже открыты - все самое необходимое расположено всего лишь в нескольких шагах •В 12 корпусе откроется супермаркет это удобно ЭКОЛОГИЯ И ПРИРОДА: •Экологически благоприятное окружение это важно •Чистый воздух дышите полной грудью •Обустроенная набережная реки Пахры рядом с домом для пробежек, прогулок и отдыха с семьей и друзьями О застройщике: Под руководством и при участии ГК "Град" построены объекты общей площадью более 600 тыс. кв. м, в том числе клубные форматы и квартиры бизнес-класса. Застройщик известен высоким качеством строительства и отделки и точными сроками сдачи проектов. В 2020 году ГК "Град" стал единственным застройщиком Московской области, получившим Золотой знак "Надежный застройщик России 2020". Продам 1-комнатную квартиру с евроремонтом в городском округе Домодедово Московской области.



























































































