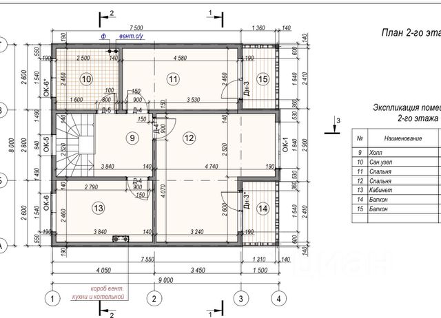
Продаю жилой дом 180 кв м на участке 8 соток на берегу реки Злодейка. Дом двухэтажный, 4 спальни, кухня-гостинная, 2 санузла, техническая комната, коридор. Построен на бетонный сваях. Дом каркасный, для перекрытия использован брус. Цоколь обложен декоративным камнем. Для строительства были использованы лучшие материалы. Крыша металлочерепица. Лестница внутри из дерева. Ламинированные стеклопакеты/двери,8 панорамных окон. Качественные отделочные материалы. Полы на 1 и на 2 этаже: Первый слой: пароизоляция Второй слой: ОСБ Третий слой: утеплитель 150-ый Четвертый слой: пароизоляция Пятый слой : доска 25 Шестой слой: ОСБ Седьмой слой: ламинат. Стены внутри обшиты вагонкой, утеплитель 150-ый Технониколь Роклайт. Дом обшит сайдингом Дёке. На участке имеется баня 96 м2, 2 этажа. На первом этаже парная с зоной отдыха, душевой и санузлом. На втором этаже расположено две спальных комнаты. Проводка дома и бани кабеля Конкорд. Скважина, септик - на участке. Дом, баня и беседка задекорированы гирляндой 74IP. Дом, баня, беседка обработаны противопожарным средством, так же средством от вредителей/насекомых. По периметру участка сделан забор с автоматическими воротами. В поселок заведен газ, есть возможность при желании завести в дом. 1 взрослый собственник. Никто не зарегистрирован. Подходит под ипотеку. Свободная продажа. Все документы приведены в соответствие. Звоните, показ возможен по предварительной договорённости!










































































